Lugtrout Lane, Solihull
SOLD stc | 3 BedProperty Summary
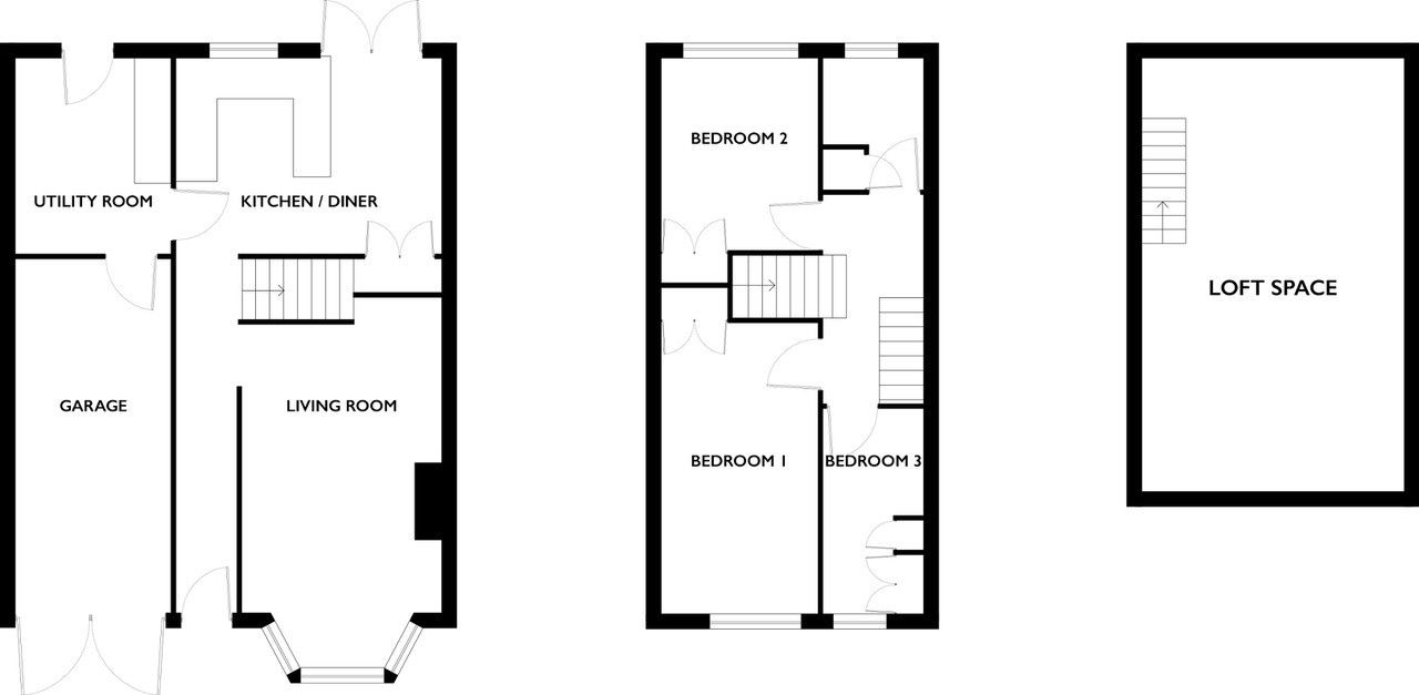
An immaculate semi-detached property benefitting with No Upward Chain in a quiet yet convenient location with accommodation comprising in brief of reception hall, lounge, dining kitchen, large utility room, three bedrooms, useable loft space, family bathroom, delightful south-west facing rear garden, garage and off-road parking. EPC Rating D. Council Tax Band D.
Full Details
The lovely semi-detached family home sits back from the road behind a generous block paved driveway that provides off-road parking. The welcoming reception hall has stairs rising to the first floor and doorways radiating off to the ground floor accommodation. There is a comfortable lounge to the front of the property with a feature fireplace, and a full-width dining kitchen to the rear with fitted storage units, a pantry, further generous storage cupboards and patio doors leading out to the rear garden. Located off the kitchen is a useful utility room, with a further array of fitted storage units plus access to the garden and garage. On the first floor you will find three bedrooms with fitted furniture and a modern family bathroom. There is a small staircase fitted on the landing that leads to a boarded loft space with power and light. The delightful rear garden is stocked with an abundance of shrubs, trees, and plants, it enjoys a south-west aspect and has a beautiful private and leafy backdrop.
Reception Hall
Lounge to front - 4.17m x 3.86m (13'8" x 12'8")
Dining Kitchen to rear - 5.21m x 3.18m (17'1" x 10'5")
Utility Room to rear - 1.7m x 3.33m (5'7" x 10'11")plus fitted wardrobes
Bedroom One to front - 3.73m x 3m (12'3" x 9'10")
Bedroom Two to rear - 3.18m x 3m (10'5" x 9'10")
Bedroom Three to front - 2.84m x 2.11m (9'4" x 6'11")inc fitted wardrobes
Bathroom to rear - 2.26m x 2.08m (7'5" x 6'10")
Garage - 5.23m x 2.21m (17'2" x 7'3")
EPC Rating D
Council Tax Band D
Tenure
The vendor advises that the property is Freehold. Drakes Estate Agents will not be held responsible should this information be incorrect and we request that your conveyancing solicitor verifies this throughout the conveyancing procedure.
The information provided by Drakes Estate Agents do not constitute part or all of an offer or contract, the measurements are supplied for guidance only and as such must be considered incorrect, we have not tested any appliances, fittings, services or equipment or and we ask all potential buyers to check the working of any appliances and the measurements before committing to any expenses. For Money Laundering purposes we will request any potential buyer at offer stage to provide proof of Identity before negotiation takes place. Drakes Estate Agents do receive a small referral fee from some Conveyancing Solicitors & Mortgage Brokers which is on a case-by-case basis, and is subject to a minimum referral fee of £50.


















