Gorsey Lane, Wythall
For Sale | 5 BedProperty Summary
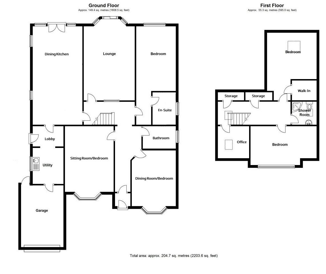
A beautifully presented dormer bungalow offering versatile living space with spacious lounge, contemporary dining kitchen, formal dining room/bedroom, sitting room/bedroom, spacious ground floor bedroom with en-suite, ground floor guest bathroom, two upstairs bedrooms, shower room, study, utility room, generous Southerly facing rear garden, garage and off road parking. EPC Rating - D. Council Tax Band - F.
Full Details
A beautifully presented and immaculately maintained detached dormer bungalow offering spacious and versatile accommodation, ideally positioned opposite open fields and set well back from the road. The property sits behind an attractive stone chipping fore garden and a tarmacadam driveway providing generous off-road parking, with gated side access to the rear garden and an electronic up-and-over door to a good-sized garage.
An enclosed porch opens into a welcoming entrance hall with stairs rising to the first floor and doors leading to a range of generous ground floor rooms. To the front are a formal dining room with bay window, which could alternatively be utilised as a bedroom, and a further sitting room, also with a bay window, offering additional flexible living or bedroom space. To the rear is a spacious family lounge featuring a double-glazed bay incorporating sliding patio doors opening onto a southerly facing patio area, complemented by a decorative electric fireplace with polished tiled surround.
The dining kitchen has been fitted with a contemporary range of handle-less units, complemented by wood-effect slimline work surfaces and feature recessed lighting. Appliances include an integrated dishwasher, inset eye-level double oven and microwave and an American-style fridge freezer. The open-plan dining area enjoys windows and French doors leading out to the rear garden. From the kitchen, a lobby provides side access to the garden and leads to a good-sized utility room with washer dryer, sink, cupboard storage, ample drying space and a door into the garage.
The spacious principal bedroom is also located on the ground floor, overlooking the rear garden and benefiting from fitted wardrobes and storage, together with access to a generous, modern en-suite shower room. The en-suite features an oversized walk-in shower, enclosed cistern WC and a stylish vanity unit with storage drawers, wash hand basin and wall-mounted tap.
To the first floor, a spacious landing provides access to two useful storage cupboards, a study or hobbies room, two double bedrooms—one of which benefits from a walk-in wardrobe or storage room—and a modern shower room.
Outside, the southerly facing rear garden has been thoughtfully landscaped and beautifully maintained, offering large patio areas, seating spaces, mature trees, a decorative well and a timber shed, creating an attractive and private outdoor retreat.
Enclosed Porch
Welcoming Reception Hall
Spacious Family Lounge to rear - 6.71m x 3.76m (22'0" x 12'4")
Formal Dining Room/Bedroom to front - 4.19m into bay x 3.35m (13'9" x 11'0")
Sitting Room/Bedroom to front - 4.7m into bay x 3.45m (15'5" x 11'4")
Contemporary Dining Kitchen to rear - 8.38m x 3.12m (27'6" x 10'3")
Utility Room to side - 2.9m x 2.36m (9'6" x 7'9")
Principle Bedroom to rear - 5.05m x 3.43m (16'7" x 11'3")
En-Suite Shower Room to side - 2.51m x 2.46m (8'3" x 8'1")
Guest Bathroom to side - 1.7m x 2.31m (5'7" x 7'7")
Landing
Bedroom to rear - 4.44m x 3.53m (14'7" x 11'7")
Bedroom to front - 4.98m x 2.92m max (16'4" x 9'7")
Study/Hobbies Room - 2.95m x 1.98m (9'8" x 6'6")
Shower Room to side - 1.7m x 1.63m (5'7" x 5'4")
Garage - 3.58m x 5.87m (11'9" x 19'3")
Council Tax Band - F.
EPC Rating - D.
Tenure
The vendor advises that the property is Freehold. Drakes Estate Agents will not be held responsible should this information be incorrect and we request that your conveyancing solicitor verifies this throughout the conveyancing procedure.
The information provided by Drakes Estate Agents do not constitute part or all of an offer or contract, the measurements are supplied for guidance only and as such must be considered incorrect, we have not tested any appliances, fittings, services or equipment or and we ask all potential buyers to check the working of any appliances and the measurements before committing to any expenses. For Money Laundering purposes we will request any potential buyer at offer stage to provide proof of Identity before negotiation takes place. Drakes Estate Agents do receive a small referral fee from some Conveyancing Solicitors & Mortgage Brokers which is on a case-by-case basis, and is subject to a minimum referral fee of £50.






























