Corbett Road, Hollywood
SOLD stc | 4 BedProperty Summary
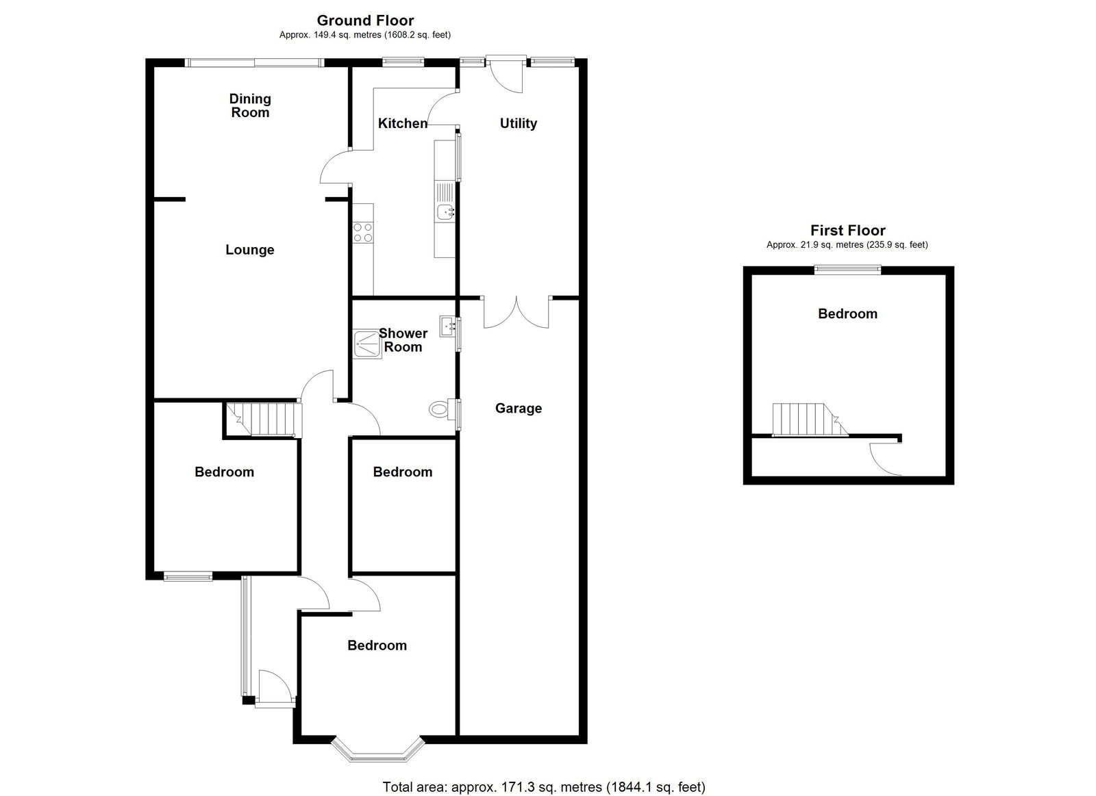
A spacious semi detached bungalow benefitting from no upward chain, three/four bedrooms, converted loft room/bedroom four, spacious lounge with open plan extended dining room, extended kitchen, spacious re-fitted shower room, garage, utility room, garden room, delightful rear garden and off road parking. EPC Rating - D. Council Tax Band - D.
Full Details
A deceptively spacious three/four bedroom semi-detached bungalow, offered to the market with no upward chain, and enjoying generous accommodation throughout.
To the front, a block-paved driveway provides ample off-road parking and leads to both the garage and an enclosed porch. The front door opens into a entrance hall giving access to three versatile double bedrooms—two positioned at the front of the property and one to the side—together with a refitted, spacious shower room.
At the heart of the home is a large open-plan lounge and dining room. The lounge area features an electric fireplace, while the dining area benefits from sliding patio doors opening directly onto the rear garden and a doorway through to the kitchen. The extended kitchen enjoys a picture window overlooking the rear garden and connects to a bright garden room, which provides further access outside and double doors into a substantial utility area that flows through to the garage. From the hallway, stairs rise to a converted loft room, previously used as a bedroom, offering generous built-in storage and additional eaves storage.
The delightful rear garden is a key feature, offering a paved patio, a lawned area, and a large timber shed—ideal for storage or hobbies.
This well-proportioned bungalow presents an excellent opportunity to acquire a flexible home with huge potential, in a popular location.
Entrance Porch
Reception Hall
Spacious Lounge to rear - 4.5m x 4.27m (14'9" x 14'0")
Open Plan Dining Area to rear - 3.96m x 2.79m (13'0" x 9'2")
Kitchen to rear - 5.61m x 2.03m max (18'5" x 6'8")
Bedroom One to front - 4.29m into bay x 3.28m max (14'1" x 10'9")
Bedroom Two to front - 3.78m x 3.18m (12'5" x 10'5")
Bedroom Three to side - 2.9m x 2.29m (9'6" x 7'6")
Spacious Shower Room to side - 2.95m x 2.26m (9'8" x 7'5")
Converted Loft Room/Bedroom Four to rear - 5.08m max x 2.92m max (16'8" x 9'7")
Open Plan Garden Room, Utility Room & Garage - 15.93m x 2.34m max (52'3" x 7'8")
Rear Garden
Council Tax Band - D.
EPC Rating - D.
Tenure
The vendor advises that the property is Freehold. Drakes Estate Agents will not be held responsible should this information be incorrect and we request that your conveyancing solicitor verifies this throughout the conveyancing procedure.
The information provided by Drakes Estate Agents do not constitute part or all of an offer or contract, the measurements are supplied for guidance only and as such must be considered incorrect, we have not tested any appliances, fittings, services or equipment or and we ask all potential buyers to check the working of any appliances and the measurements before committing to any expenses. For Money Laundering purposes we will request any potential buyer at offer stage to provide proof of Identity before negotiation takes place. Drakes Estate Agents do receive a small referral fee from some Conveyancing Solicitors & Mortgage Brokers which is on a case-by-case basis, and is subject to a minimum referral fee of £50.


















