Cherry Walk, Hollywood
For Sale | 3 BedProperty Summary
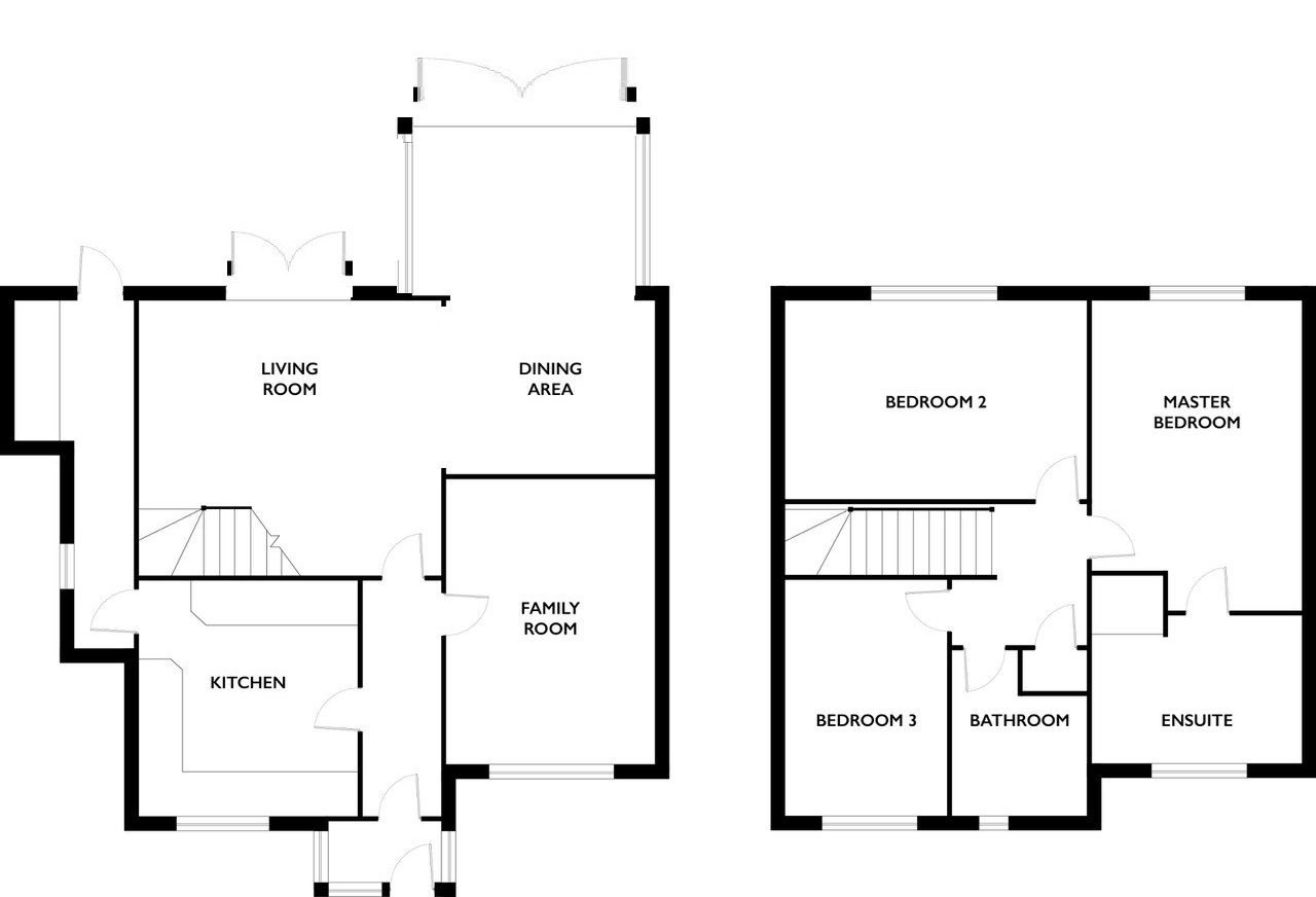
An extended and beautifully presented family home benefitting from three double bedrooms, impressive lounge diner, breakfast kitchen, versatile home office/games room, spacious en-suite shower room, attractive family bathroom, utility room, garage, off road parking and rear garden. Council Tax Band - D. EPC Rating - C.
Full Details
This extended and beautifully appointed semi-detached family home offers generous, versatile living space in a delightful location. A private driveway provides off-road parking, complemented by a rear-access garage positioned at the back of the garden.
An enclosed porch opens into a welcoming hallway, giving access to a flexible front reception room currently used as a home office and playroom – equally ideal as a snug or ground floor bedroom. The breakfast kitchen features sleek eye-level appliances and ample workspace including a breakfast bar, leading through to a superb utility room with a vaulted ceiling, extensive storage and direct access to the rear garden.
The impressive extended lounge-diner is a standout feature, designed with a vaulted ceiling, striking glazing and folding doors opening onto the garden, with additional French doors providing further natural light. An open staircase rises to the first floor.
Upstairs, the principal bedroom enjoys views over the rear garden and benefits from a spacious en-suite shower room. There are two further double bedrooms and an attractive family bathroom.
The landscaped rear garden offers patio seating areas, a lawned area and convenient access to the garage.
A superb and versatile property – an ideal family home in a highly sought-after setting.
Entrance Porch
Reception Hall
Breakfast Kitchen to front - 3.46m x 2.13m (10.6'9" x 7'0")
Utility Room to rear - 4.75m max x 1.85m max (15'7" x 6'1")
Versatile Home Office/Games Room to front - 3.89m x 2.59m (12'9" x 8'6")
Impressive Extended Lounge Diner to rear - 5.23m max x 7.11m (17'2" x 23'4")
Bedroom One to rear - 4.37m x 2.62m (14'4" x 8'7")
Spacious En-Suite Shower Room to front - 2.62m x 2.77m (8'7" x 9'1" max into shower, 7'4" min)
Bedroom Two to rear - 4.11m x 2.64m (13'6" x 8'8")
Bedroom Three to front - 3.28m x 2.18m (10'9" x 7'2")
Attractive Family Bathroom to front - 2.29m max x 1.83m max (7'6" x 6'0")
Rear Garden
Garage to rear
Council Tax Band - D.
EPC Rating - C.
Tenure
The vendor advises that the property is Freehold. Drakes Estate Agents will not be held responsible should this information be incorrect and we request that your conveyancing solicitor verifies this throughout the conveyancing procedure.
The information provided by Drakes Estate Agents do not constitute part or all of an offer or contract, the measurements are supplied for guidance only and as such must be considered incorrect, we have not tested any appliances, fittings, services or equipment or and we ask all potential buyers to check the working of any appliances and the measurements before committing to any expenses. For Money Laundering purposes we will request any potential buyer at offer stage to provide proof of Identity before negotiation takes place. Drakes Estate Agents do receive a small referral fee from some Conveyancing Solicitors & Mortgage Brokers which is on a case-by-case basis, and is subject to a minimum referral fee of £50.




























