Haslucks Green Road, Shirley
SOLD stc | 3 BedProperty Summary
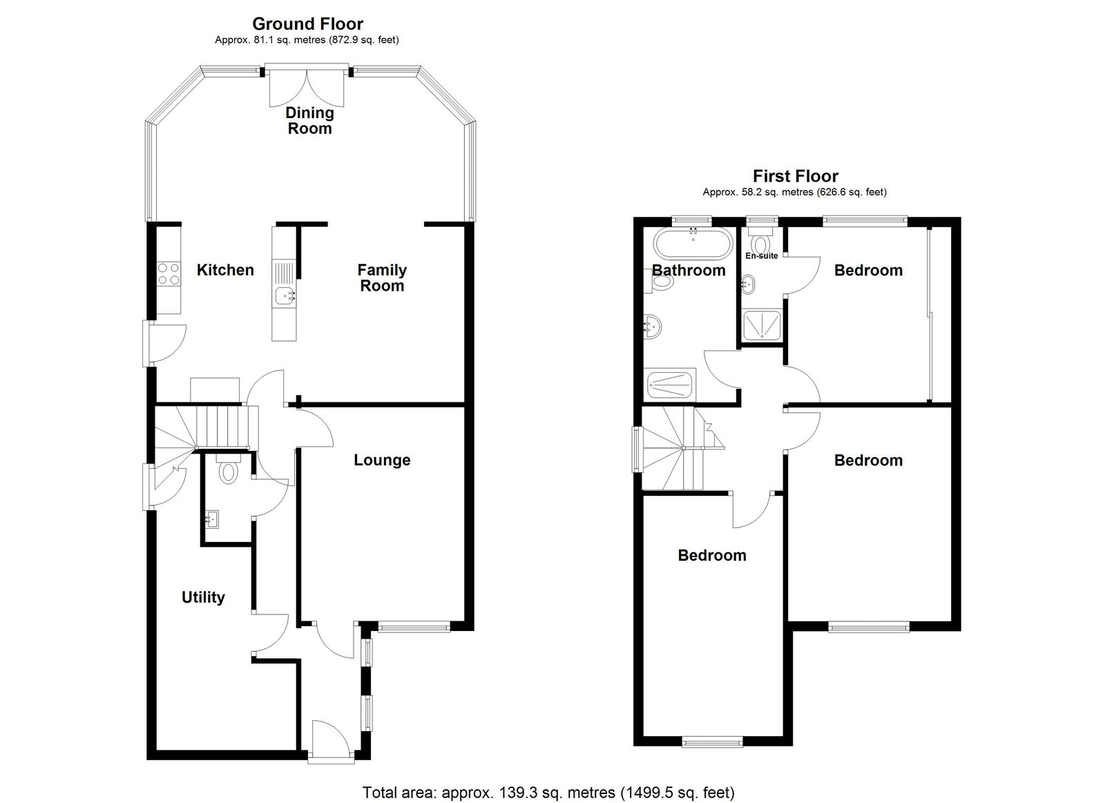
An extended and beautifully presented semi detached home benefitting from open views to the front, three double bedrooms, impressive open plan breakfast kitchen & family dining area, lounge, guest WC, modern en-suite shower room & four piece family bathroom, off road parking, garage/store room with utility area and a good size rear garden with Summer house. EPC Rating - C. Council Tax Band -D.
Full Details
An extended and beautifully presented semi-detached home, set well back from the road behind a deep block-paved driveway that provides generous off-road parking. The property enjoys open views to the front and benefits from gated side access leading through to the rear garden, along with an up-and-over garage door opening into a versatile garage/store room.
An attractive front door opens into a welcoming and extended reception hall, featuring decorative tiled flooring, inset spotlights and a feature radiator. From here there is access to the garage, guest WC, lounge and breakfast kitchen, with stairs rising to the first-floor accommodation.
The lounge is a well-proportioned and inviting space, enjoying open views to the front, a feature schoolhouse-style radiator and a secondary door returning to the hallway. The guest WC is finished with decorative tiling and a contemporary suite.
The impressive breakfast kitchen forms the heart of the home, offering an excellent family and entertaining space. It features granite work surfaces, a breakfast bar seating area, space for a dishwasher and an American-style fridge freezer, along with a large electric hob, granite splashback and a statement extractor canopy. The kitchen flows seamlessly into a warm-roof conservatory, currently used as an additional living and dining area, complete with a schoolhouse-style radiator and French doors opening onto the decked patio.
To the first floor, the principal bedroom is positioned to the rear and is fitted with full-length mirrored wardrobes, complemented by a modern en-suite shower room. Two further double bedrooms are located to the front of the property, both enjoying open views and fitted with schoolhouse-style radiators. The stylish four-piece family bathroom is to the rear and boasts a freestanding bath with floor-mounted mixer tap and shower attachment, a separate shower cubicle and complimentary tiling.
The garage provides excellent storage and incorporates a small utility area with space and plumbing for both a washing machine and tumble dryer, with additional access to the side and driveway.
The rear garden is a good size, featuring a generous decked patio ideal for outdoor seating and entertaining. A stepping-stone pathway leads across the lawn to a charming summer house. The block-paved side passage offers a convenient through-route with gated access back to the driveway.
Overall, this is a superb family home offering spacious and versatile accommodation, high-quality finishes throughout and an enviable setting with open views to the front.
Welcoming Reception Hall
Guest WC
Lounge to front - 4.44m x 3.12m (14'7" x 10'3")
Breakfast Kitchen - 5.87m x 3.51m (19'3" x 11'6")
Open Plan Warm Roof Conservatory - 5.36m x 2.77m (17'7" x 9'1")
Bedroom One to rear - 4.14m x 2.36m up to wardrobes (13'7" x 7'9")
En-Suite Shower Room to rear - 0.84m x 2.54m into shower (2'9" x 8'4")
Bedroom Two to front - 5m x 2.79m max (16'5" x 9'2")
Bedroom Three to front - 4.09m x 2.92m (13'5" x 9'7")
Four Piece Family Bathroom to rear - 3.56m x 1.75m (11'8" x 5'9")
Garage/Store Room With Utility Area - 4.09m x 1.88m min (13'5" x 6'2")
Good Size Rear Garden With Summer House
EPC Rating - C.
Council Tax Band - D.
Tenure
The vendor advises that the property is Freehold. Drakes Estate Agents will not be held responsible should this information be incorrect and we request that your conveyancing solicitor verifies this throughout the conveyancing procedure.
The information provided by Drakes Estate Agents do not constitute part or all of an offer or contract, the measurements are supplied for guidance only and as such must be considered incorrect, we have not tested any appliances, fittings, services or equipment or and we ask all potential buyers to check the working of any appliances and the measurements before committing to any expenses. For Money Laundering purposes we will request any potential buyer at offer stage to provide proof of Identity before negotiation takes place. Drakes Estate Agents do receive a small referral fee from some Conveyancing Solicitors & Mortgage Brokers which is on a case-by-case basis, and is subject to a minimum referral fee of £50.


























