Coppice Gardens, Hollywood
SOLD stc | 3 BedProperty Summary
A modern semi-detached property set in a convenient, cul-de-sac location with accommodation comprising in brief of reception hall, lounge, dining kitchen, guest WC, study, three good-sized bedrooms, ensuite shower room, family bathroom, pleasant rear garden, garage and a driveway providing off road parking. EPC Rating C. Council Tax Band D.
Full Details
This modern semi-detached home is within walking distance to sought-after schools; The Coppice Primary School and Woodrush High School and sits at the end of a pleasant cul-de-sac location behind a front garden with an adjacent driveway. The reception hall has stairs rising to the first floor and doors radiating off to the ground floor accommodation, including the guest WC. There is a dual aspect lounge and a dining kitchen, which is also dual aspect. The ground floor also benefits from a study. On the first floor, you will find three good-sized bedrooms, an ensuite shower room and a family bathroom. The rear garden is low maintenance and is mostly paved with fencing to boundaries and a personal door to the garage.
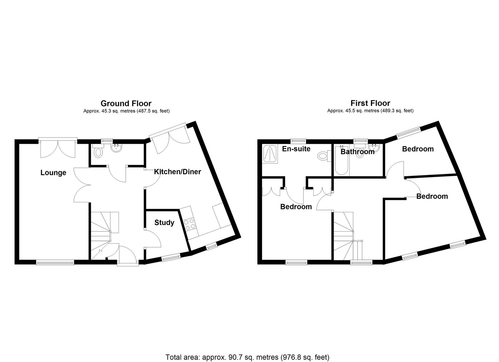
Reception Hall
Guest WC to rear
Dual Aspect Lounge - 4.8m x 2.97m (15'9" x 9'9")
Dual Aspect Dining Kitchen - 4.9m x 3.51m (16'1" x 11'6") max
Study to front - 2.34m x 2.87m (7'8" x 9'5") max
Bedroom One to front - 3.12m x 2.97m (10'3" x 9'9") max
Ensuite to rear - 2.24m x 0.97m (7'4" x 3'2")plus Shower Cubicle
Bedroom Two to front - 4.9m x 2.59m (16'1" x 8'6") max
Bedroom Three to rear - 3.28m x 2.13m (10'9" x 7'0")
Bathroom to rear - 2.01m x 1.68m (6'7" x 5'6")
Garage
EPC Rating C
Council Tax Band D
Tenure
The vendor advises that the property is Freehold. However there is a monthly maintenance fee payable to Maple222 for the maintenance of the communal areas of £20pcm. Drakes Estate Agents will not be held responsible should this information be incorrect and we request that your conveyancing solicitor verifies this throughout the conveyancing procedure.
The information provided by Drakes Estate Agents do not constitute part or all of an offer or contract, the measurements are supplied for guidance only and as such must be considered incorrect, we have not tested any appliances, fittings, services or equipment or and we ask all potential buyers to check the working of any appliances and the measurements before committing to any expenses. For Money Laundering purposes we will request any potential buyer at offer stage to provide proof of Identity before negotiation takes place. Drakes Estate Agents do receive a small referral fee from some Conveyancing Solicitors & Mortgage Brokers which is on a case-by-case basis, and is subject to a minimum referral fee of £50.














