Alcester Road, Hollywood
SOLD stc | 4 BedProperty Summary
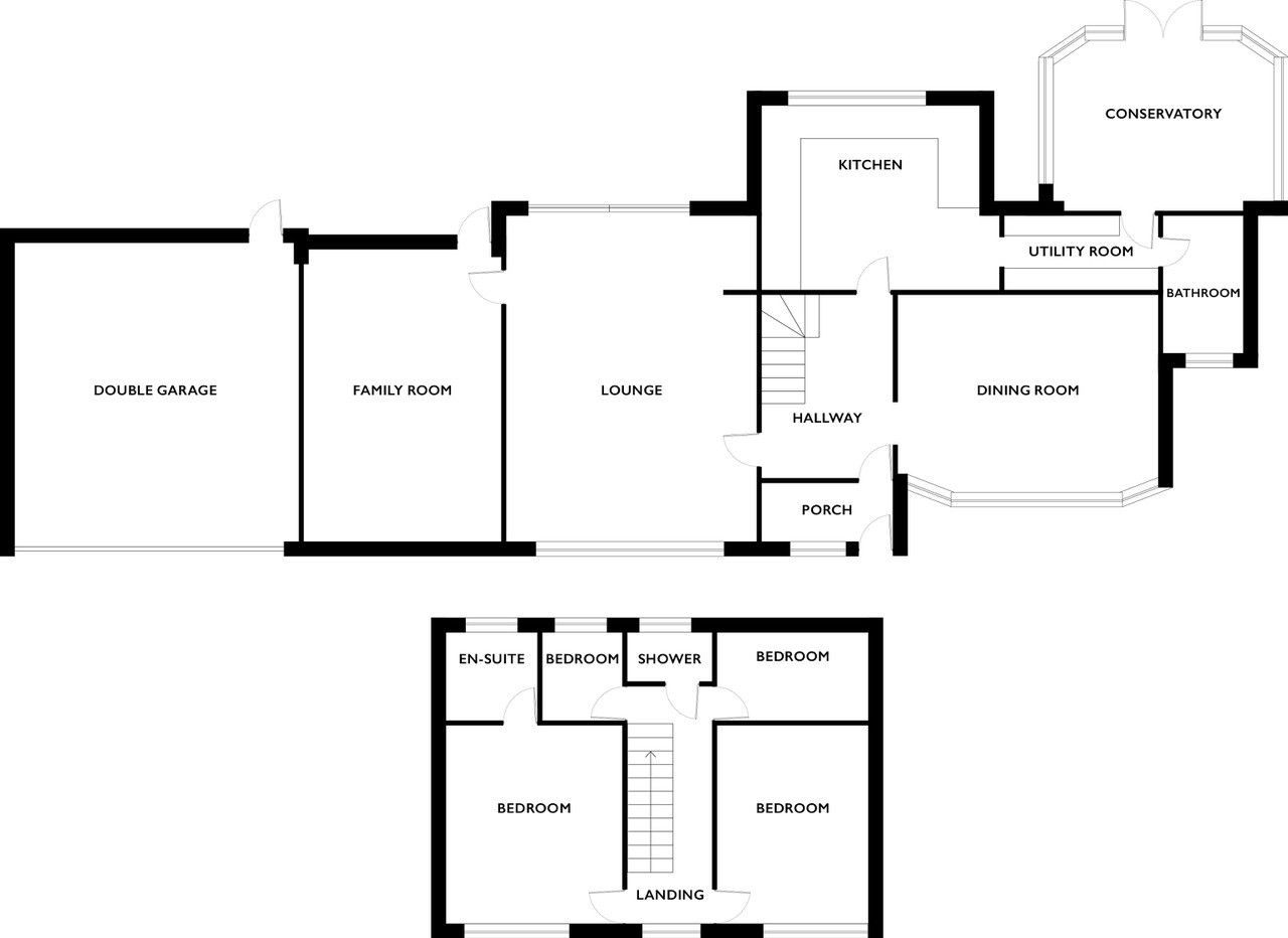
A spacious, extended detached home occupying an impressive plot with further scope for extension, subject to the relevant planning consent. The well-maintained accommodation comprises in brief of entrance porch, reception hall, lounge, dining room, study/family room, modern kitchen, utility, bathroom/guest WC, conservatory, four bedrooms, ensuite shower room, family shower room, extensive driveway, double garage and large mature gardens. EPC Rating D. Council Tax Band E.
Full Details
This large, detached family home occupies an enviable plot, offering immense scope for further extension subject to the relevant planning consent set within the popular village of Hollywood, the proeprty is located close to local amenities, shops and doctors and is within walking distance to the local primary and secondary schools - Coppice Primary School & Woodrush Secondary school . The property sits back from the road behind a generous fore garden and an extensive driveway providing a good amount of off-road parking which leads to the double garage. An enclosed entrance porch leads into a welcoming reception hall with stairs rising to the first floor and Oak doors radiating to the ground floor accommodation. There is a spacious dual aspect lounge with a door leading to a study/family room, there is also a dining room located at the front of the property, making a total of three good-sized reception rooms. The kitchen is fitted with a range of storage units and appliances and leads into a useful utility room. The ground floor accommodation further boasts a large bathroom/guest WC and a conservatory. On the first floor you will find four bedrooms, an ensuite shower room and a further family shower room. The mature, private rear garden has an extensive lawn and patio, plus a summer house. There is gated side access and a personal door to the double garage.
Entrance Porch
Reception Hall
Dual Aspect Lounge - 7.37m x 3.3m (24'2" x 10'10")
Dining Room to front - 3.96m x 3.33m (13'0" x 10'11")
Dual Aspect Study/Family Room - 5.92m x 2.54m (19'5" x 8'4")
Kitchen to rear - 3.99m x 3.3m (13'1" x 10'10")
Utility Room to rear - 2.24m x 2.13m (7'4" x 7'0")
Bathroom/Guest WC to front - 3.33m x 3.51m (10'11" x 11'6")
Conservatory to rear - 4.04m x 2.77m (13'3" x 9'1")
Bedroom One to front - 3.33m x 3.51m (10'11" x 11'6")
Ensuite - 2.21m x 1.83m (7'3" x 6'0")
Bedroom Two to front - 3.51m x 3.35m (11'6" x 11'0")
Bedroom Three to rear - 2.39m x 2.21m (7'10" x 7'3")
Bedroom Four to rear - 2.29m x 2.16m (7'6" x 7'1")
Family Shower Room - 1.27m x 1.09m (4'2" x 3'7")plus shower cubicle
Double Garage - 6.32m x 5.08m (20'9" x 16'8")
EPC Rating D
Council Tax Band E
Tenure
The vendor advises that the property is Freehold. Drakes Estate Agents will not be held responsible should this information be incorrect and we request that your conveyancing solicitor verifies this throughout the conveyancing procedure.
The information provided by Drakes Estate Agents do not constitute part or all of an offer or contract, the measurements are supplied for guidance only and as such must be considered incorrect, we have not tested any appliances, fittings, services or equipment or and we ask all potential buyers to check the working of any appliances and the measurements before committing to any expenses. For Money Laundering purposes we will request any potential buyer at offer stage to provide proof of Identity before negotiation takes place. Drakes Estate Agents do receive a small referral fee from some Conveyancing Solicitors & Mortgage Brokers which is on a case-by-case basis, and is subject to a minimum referral fee of £50.


























